Tolles freistehendes und neu erstelltes Massa Ausbauhaus auf einem 12 a großem Grundstück in Rehlingen-Siersburg Ortsteil Fremersdorf zu verkaufen!
66780 Rehlingen-Siersburg / Fremersdorf, Einfamilienhaus zum Kauf480.000,00 €
126 m²
Wohnraum (ca.)7
Zimmer1200 m²
Grundstück (ca.)74 m²
Nutzfläche (ca.)Überblick (Wohnimmobilie)
- Immobilien ID350721008-4014
- Immobilien-TypEinfamilienhaus
- Lage66780 Rehlingen-Siersburg / Fremersdorf
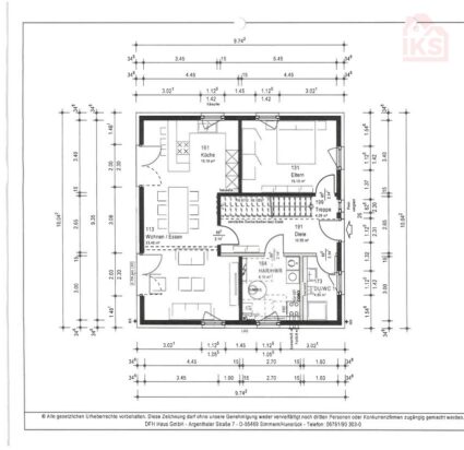
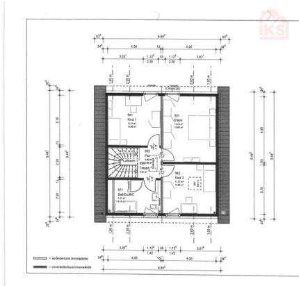
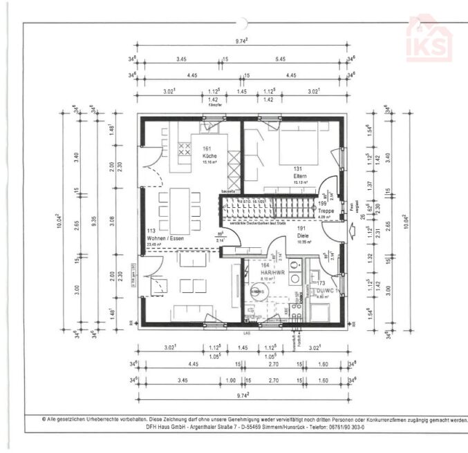
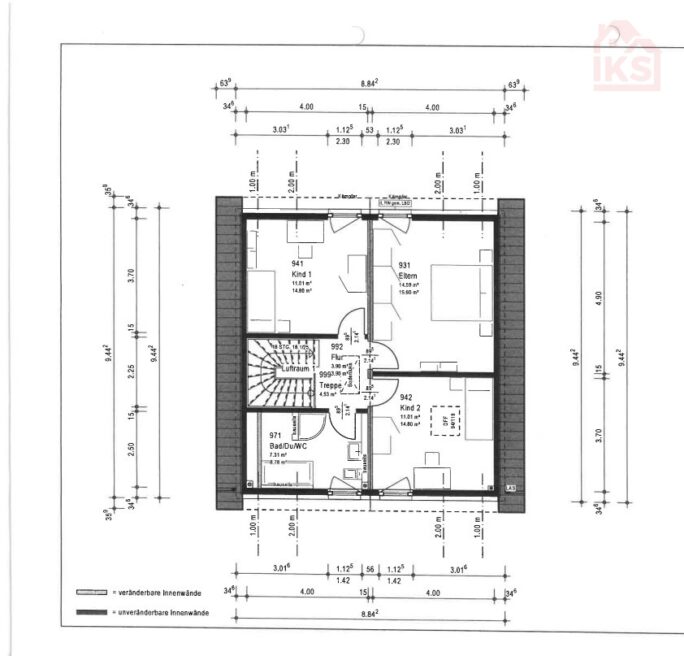
- Wohnraum (ca.)126 m²
- Grundstück (ca.)1200 m²
- Nutzfläche (ca.)74 m²
- Zimmer7
- Schlafzimmer4
- Badezimmer2
- Baujahr2022
- Kaufpreis480.000,00 €
- Provision3,57
Ausstattung
Unter anderem mit: Fußbodenheizung
Über diese Immobilie
Objektbeschreibung
In ruhiger und großzügiger Lage präsentiert sich dieses freistehende Massa-Haus als außergewöhnliche Gelegenheit für Menschen mit Visionen. Errichtet im Jahr 2022, bietet diese Immobilie die perfekte Basis, um den Traum vom individuellen Eigenheim Wirklichkeit werden zu lassen.
Auf einem weitläufigen Grundstück von ca. 12 Ar gelegen, überzeugt das Haus durch seine klare Architektur, seine moderne Bauweise und sein enormes Potenzial. Das Gebäude ist voll unterkellert und verfügt über eine direkt ins Haus integrierte Garage, die Komfort und Funktionalität harmonisch miteinander verbindet.
Da sich das Haus aktuell im nicht fertiggestellten Zustand befindet, eröffnet sich dem zukünftigen Eigentümer die seltene Möglichkeit, den Innenausbau ganz nach den eigenen Vorstellungen zu gestalten – von der Raumaufteilung bis hin zu Materialien, Farben und Ausstattungsdetails. So entsteht kein Haus „von der Stange“, sondern ein echtes Zuhause mit Persönlichkeit.
Ein besonderer Mehrwert: Alle Gewerke sind bereits im Kaufpreis enthalten, was Planungssicherheit bietet und den Weg zur Fertigstellung erheblich erleichtert.
Die freistehende Lage garantiert Privatsphäre, Ruhe und ein hohes Maß an Lebensqualität. Das großzügige Grundstück bietet ausreichend Platz für Garten, Terrasse oder weitere individuelle Gestaltungsideen – ein Ort, an dem Familie, Entspannung und Zukunft zusammenfinden.
Diese Immobilie richtet sich an Käufer, die nicht nur ein Haus suchen, sondern die Chance, einen ganz persönlichen Wohntraum zu verwirklichen.
Auch eine Solaranlage für Warmwasser ist im Kaufpreis enthalten.
Provision:
Die Maklerprovision in Höhe 3,57% inkl. 19 % MwSt vom Kaufpreis ist mit Abschluss des Kaufvertrages verdient und fällig. Immobilien-Kontor-Saarlouis erhält einen unmittelbaren Zahlungsanspruch gegenüber dem Käufer (Vertrag zugunsten Dritter, § 328 BGB).
Hinweise:
Bitte beachten Sie, dass dieses Angebot anhand der uns vom Eigentümer zur Verfügung gestellten Daten und Unterlagen erstellt wurde. Trotz aller Sorgfalt können wir für die Richtigkeit und Vollständigkeit der Angaben keine Gewähr übernehmen.
Lage
Fremersdorf ist ein Ortsteil der Gemeinde Rehlingen-Siersburg im saarländischen Landkreis Saarlouis, bekannt für das historisch bedeutende, aber privat genutzte Schloss Fremersdorf sowie die katholische Kirche St. Mauritius und St. Barbara, wobei das Schloss an der Saar liegt und Restaurierungsarbeiten erhält. Die Gemeinde Rehlingen-Siersburg, zu der Fremersdorf gehört, ist eine der größten flächenmäßig im Saarland. Wichtige Informationen: Lage: Im Landkreis Saarlouis, an der Saar. Zugehörigkeit: Ortsteil der Gemeinde Rehlingen-Siersburg. Schloss Fremersdorf: Ein altes Schloss mit Ursprüngen im Mittelalter, das heute privat ist und von der Deutschen Stiftung Denkmalschutz bei der Instandsetzung unterstützt wird. Kirche St. Mauritius und St. Barbara: Eine katholische Pfarrkirche, die als Einzeldenkmal gelistet ist. Kurz gesagt: Fremersdorf ist ein historisch geprägter Ortsteil, der durch seine Nähe zur Saar und seine historischen Gebäude wie das Schloss und die Kirche gekennzeichnet ist. Fremersdorf besitzt einen Haltepunkt an der Saarstrecke, dieser liegt am gegenüberliegenden Saarufer auf dem Gebiet der Stadt Merzig und ist vom Fremersdorfer Ortskern aus über eine Fußgängerbrücke zu erreichen. Dort verkehren stündlich (im Berufsverkehr teilweise auch öfter) Regionalbahnen in Richtung Trier (über Merzig und Saarburg), sowie nach Homburg via Dillingen/Saar, Saarlouis, Völklingen und Saarbrücken.
Energieausweis
Der Energieausweis befindet sich derzeit in Anfertigung.
Ihr Ansprechpartner









