Terrain constructible idéal pour une famille dans le parc résidentiel de Hausenstraße – parfait pour une maison jumelée
66333 Völklingen / Fenne, propriété à vendre45.000,00 €
276 m²
Propriété (approx.)Aperçu (bien immobilier résidentiel)
- Identifiant de la propriété :Harry_Mohr-4007
- Type de propriété :Terrain
- Lieu66333 Völklingen / Fenne
- Terrain (environ)276 m²
- prix d'achat45.000,00 €
- commission3,57%
À propos de cette propriété
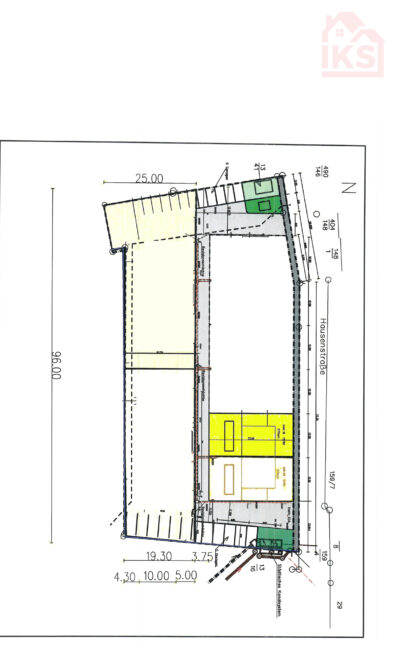
Dans le parc résidentiel Hausenstraße, la parcelle WA 1-02 offre un cadre idéal pour une vie de famille moderne. D'une superficie d'environ 276 m², elle se prête parfaitement à la construction d'une maison jumelée, alliant flexibilité architecturale et fonctionnalité. La possibilité de construire sur deux niveaux permet d'aménager un espace de vie spacieux et convivial.
Située dans un quartier résidentiel calme et bien établi, cette propriété est classée en zone résidentielle générale (WA) – un atout indéniable pour les familles qui recherchent un voisinage harmonieux et un cadre de vie sécurisé. Autre point fort : une aire de jeux jouxte la propriété, permettant aux enfants de jouer en toute sécurité à proximité de leur domicile.
Avec ses terrasses et jardins, sa place de parking attenante et ses commodités facilement accessibles, cette propriété offre un confort de vie optimal. Son cadre paisible, son ambiance familiale et son excellente accessibilité en font un lieu idéal pour s'y installer durablement.
Votre maison est en construction ici – réservez votre terrain dès maintenant et faites de votre maison de rêve une réalité !
Position
Le quartier de Fenne, situé à l'est de Völklingen, offre un cadre de vie résidentiel calme et bien desservi, à l'atmosphère conviviale. Caractérisé par des immeubles d'habitation, des résidences de taille modeste et des maisons individuelles bien entretenues, Fenne allie la proximité de la ville à un environnement paisible et familial. Les courses quotidiennes sont facilement accessibles : commerces, boulangeries, pharmacies et autres commodités se trouvent à proximité immédiate ou sont accessibles en quelques minutes. Les transports en commun sont excellents. La route fédérale B51 et les autoroutes A620 et A623 permettent de rejoindre rapidement et facilement les villes voisines telles que Sarrebruck et Dillingen. Le réseau de transports publics est performant, avec des liaisons régulières en bus et en train vers le centre-ville et le réseau régional. Ce quartier est donc idéal pour les personnes qui travaillent à l'extérieur et pour les résidents qui privilégient la mobilité. De plus, Fenne bénéficie de sa proximité avec les espaces verts et les zones de loisirs le long de la Sarre, ainsi qu'avec la riche offre culturelle de Völklingen, notamment le site classé au patrimoine mondial de l'UNESCO : la fonderie de Völklingen. Écoles, crèches et infrastructures de loisirs sont facilement accessibles. Alliant cadre résidentiel paisible, infrastructures performantes et excellente accessibilité, Fenne offre un cadre de vie attractif pour les familles, les professionnels et les investisseurs.
certificat énergétique
Le certificat de performance énergétique est en cours d'élaboration.
Votre personne de contact


