Emplacement idéal pour un immeuble d'appartements moderne dans le parc résidentiel de Hausenstraße
66333 Völklingen / Fenne, propriété à vendre160.000,00 €
1224 m²
Propriété (approx.)Aperçu (bien immobilier résidentiel)
- Identifiant de la propriété :Harry_Mohr-4006
- Type de propriété :Terrain
- Lieu66333 Völklingen / Fenne
- Superficie du terrain (environ)1224 m²
- prix d'achat160.000,00 €
- commission3,57%
À propos de cette propriété
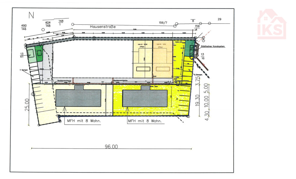
Le terrain constructible WA 2-02 dans le parc résidentiel Hausenstraße offre une zone d'investissement attrayante pour la réalisation d'un immeuble d'appartements moderne avec environ 6 à 10 unités résidentielles.
Le terrain d'environ 1 224 m² est situé dans le quartier calme et intérieur du nouveau quartier en développement et est idéalement adapté à un projet de développement économique avec deux à trois étages complets.
Le secteur est classé en zone résidentielle générale (ZRG), ce qui permet une conception de logements flexible et adaptée aux besoins. Avec un coefficient d'occupation des sols (COS) de 0,4, pouvant être porté à 0,6 si nécessaire, le site offre de nombreuses possibilités d'aménagement. Les importantes subventions publiques disponibles pour le logement social et les solides arguments ESG (environnementaux, sociaux et de gouvernance) constituent des atouts majeurs, faisant de ce projet un investissement durable et rentable.
La forte demande en espaces de vie modernes et économes en énergie souligne encore davantage le potentiel de cet investissement.
Ceux qui privilégient le développement durable du logement et la sécurité de l'avenir trouveront ici un cadre idéal. Renseignez-vous dès maintenant et saisissez cette opportunité d'investissement !
Position
Le quartier de Fenne, situé à l'est de Völklingen, offre un cadre de vie résidentiel calme et bien desservi, à l'atmosphère conviviale. Caractérisé par des immeubles d'habitation, des résidences de taille modeste et des maisons individuelles bien entretenues, Fenne allie la proximité de la ville à un environnement paisible et familial. Les courses quotidiennes sont facilement accessibles : commerces, boulangeries, pharmacies et autres commodités se trouvent à proximité immédiate ou sont accessibles en quelques minutes. Les transports en commun sont excellents. La route fédérale B51 et les autoroutes A620 et A623 permettent de rejoindre rapidement et facilement les villes voisines telles que Sarrebruck et Dillingen. Le réseau de transports publics est performant, avec des liaisons régulières en bus et en train vers le centre-ville et le réseau régional. Ce quartier est donc idéal pour les personnes qui travaillent à l'extérieur et pour les résidents qui privilégient la mobilité. De plus, Fenne bénéficie de sa proximité avec les espaces verts et les zones de loisirs le long de la Sarre, ainsi qu'avec la riche offre culturelle de Völklingen, notamment le site classé au patrimoine mondial de l'UNESCO : la fonderie de Völklingen. Écoles, crèches et infrastructures de loisirs sont facilement accessibles. Alliant cadre résidentiel paisible, infrastructures performantes et excellente accessibilité, Fenne offre un cadre de vie attractif pour les familles, les professionnels et les investisseurs.
certificat énergétique
Le certificat de performance énergétique est en cours d'élaboration.
Votre personne de contact


